0371-6323237713674970222

工业除尘设备
您的位置: 主页 > 产品中心
上一页
下一页

锅炉电除尘器

锅炉电除尘器

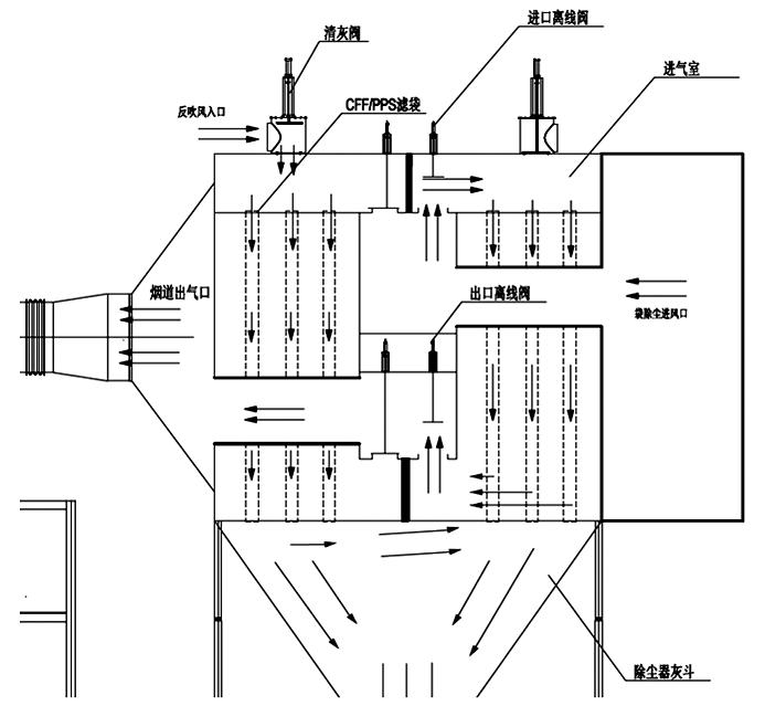
锅炉电除尘器是静电除尘器,在锅炉行业应用比较普遍,特点是振打力传递均匀且效果好清灰容易。锅炉电除尘器具有阻力小、分风均匀、运行稳定、除尘效率高等特点,广泛应用于电力、冶金、化工、建材、轻工等工业废气的净化和有用物质的回收。
服务热线: 13674970222

产品概述

锅炉电除尘器是静电除尘器,在锅炉行业应用比较普遍,特点是振打力传递均匀且效果好清灰容易。锅炉电除尘器具有阻力小、分风均匀、运行稳定、除尘效率高等特点,广泛应用于电力、冶金、化工、建材、轻工等工业废气的净化和有用物质的回收。
锅炉电除尘器实图
锅炉电除尘器原理:

  静电除尘器的工作原理是利用高压电场使烟气发生电离,气流中的粉尘荷电在电场作用下与气流分离。负极由不同断面形状的金属导线制成,叫放电电极。正极由不同几何形状的金属板制成,叫集尘电极。静电除尘器的性能受粉尘性质、设备构造和烟气流速等三个因素的影响。粉尘的比电阻是评价导电性的指标,它对除尘效率有直接的影响。比电阻过低,尘粒难以保持在集尘电极上,致使其重返气流。比电阻过高,到达集尘电极的尘粒电荷不易放出,在尘层之间形成电压梯度会产生局部击穿和放电现象。这些情况都会造成除尘效率下降。
锅炉电除尘器原理
锅炉电除尘器性能特点:

  1、采用计算机全套设计,设计准确可靠。

  2、壳体采用框架式结构,强度高,稳定性好,可按不同的压力及耐温要求进行设计。

  3、进出气方式可根据工艺布置和烟气特点设计成多种形式,工艺布置灵活多变。

  4、采用阻流加导流型气流均布装置,气流均布好,无堵灰现象。

  5、沉淀极采用480C板板,放电极采用新型RS管状芒刺线,极配合理,放电均匀,放电性能好。

  6、放电极与框架连接合理,无掉线、断线情况。

  7、侧部挠臂锤式振打,振打力传递均匀且效果好,清灰容易。
在线留言

热品推荐 / Hot product

电除尘器

电除尘器

电除尘器是火力发电厂必备的配套设备,它的功能是将燃煤或燃油锅炉排放烟气中的颗粒烟尘加以清除,从而大幅度降低排入大气层中的烟尘量,这是改善环境污染,提高空气质量的重要环保设备。
湿电除尘

湿电除尘

湿式除尘器优点:1、除尘效率高:设计合理的电除尘器除尘效率可达到 99%以上。2、阻力损失小:一般电除尘器的阻力小于 294Pa,有的阻力要求更高。
湿法除尘器

湿法除尘器

湿法除尘器通常是指含尘烟气通过接触水、碱液等液体而达到去除尘粒的目的的除尘设备。
高压静电除尘器

高压静电除尘器

高压静电除尘器是利用高压电场产生的静电力使烟气中的粉尘荷电, 并在电场作用下使荷电粉尘从气流中分离出来,分别向阴、阳极移动并粘附其上,然后通过振打装置振打清灰,使积灰落入灰斗,达到收尘目的的除尘装置。

全国服务热线

13674970222
金彩汇 - 安全购彩 金彩汇快3 - 首页 乐发Ⅱ2 - 欢迎您 金彩汇 - 首页 金彩汇 - welcome 乐彩汇 - 首页 金彩汇 - 安全购彩welcome 佰富彩采购大厅 - 欢迎您